
说在前面
男业主出生艺术世家从事金融行业,第一次见面西装革履金丝眼镜不说话的时候感觉有些严肃,后面熟悉了发现也挺随和有意思,女业主在航空公司上班,是个很可爱的女生,平时两人上班都比较忙,装修事宜由女业主的妈妈负责沟通采购,阿姨亲切随和热爱生活,退休后的朋友圈尽是鲜花美食,偶尔还有一只爱摆拍的狗狗微笑入镜。每次一起外采途中,阿姨都会像妈妈一样和我们分享人生故事和道理,感受颇多。
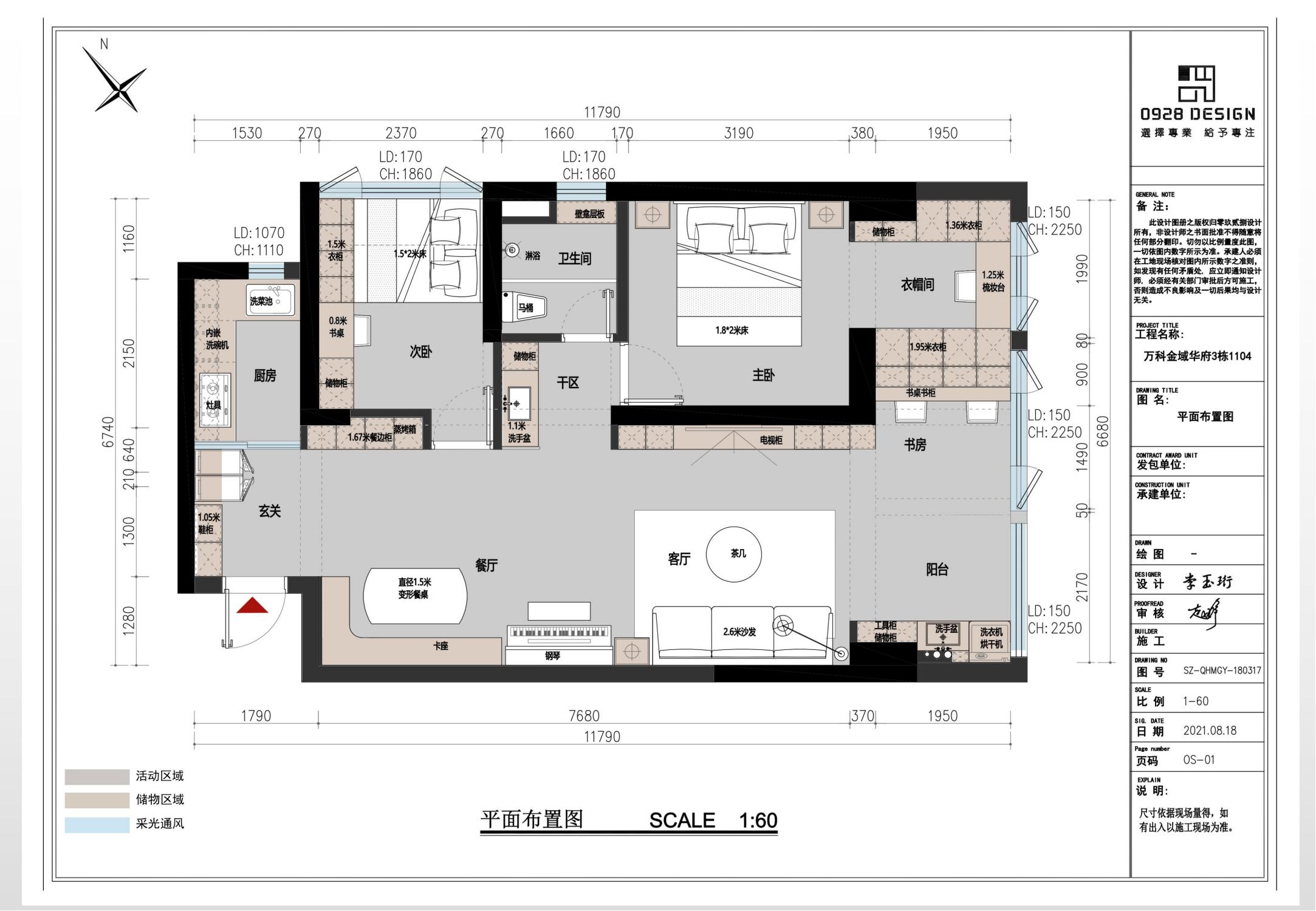
原始户型图

1. 入户距离厨房太近,过于拥挤采光不好,厨房太小不足以满足日常使用
2. 原本餐厅餐桌靠次卧摆放,进门动线不合理
3. 原卫生间较小,没有干湿分离
4. 主卧床头位置较窄,无法容纳1.8米床+床头柜+衣柜
5. 男业主有居家办公需求,需单独书房,女业主钢琴需有摆放空间
平面布置图

1. 入户门改外开,入户左手边做鞋柜,冰箱外置,减少厨房拥挤感
2. 次卧改变进门方向,借用空间做餐边柜,原进门位置改为干区,餐边柜电视柜整排处理视觉整洁,餐厅做卡座与沙发一侧增加储物有互动
3. 原三个小阳台做功能区分,主卧阳台推拉门拆除,做步入式衣帽间,增加储物缓解房间压力,客厅阳台封窗打通合并,一侧做开放式书房另一侧为洗衣晾晒区,空间更加通透
玄关

入户玄关左侧做玄关柜,中间镂空放湿巾消毒液及饰品,下方镂空方便拖鞋的摆放。厨房冰箱外置,节省厨房空间的同时,方便食材的拿取。
厨房

厨房料理台为L型,小白方砖上墙,提升空间亮度北欧感十足,绿色花纹地砖给整体增加了一些趣味,岩板料理台下方为组合型橱柜,给东西的摆放提供更多收纳方式,原木色很好地过渡了白色与花色的搭配。

厨房与次卧门口借用墙体空间做了一面储物餐边柜,缓解厨房储物压力,中间镂空预留位置摆放饮水机、咖啡机以及业主收集的各式杯子,简易咖啡角妥妥的~
餐厅



餐厅做卡座设计增加储物,搭配伸缩餐桌,聚餐再也不怕位置不够,岩板餐桌搭配透明亚克力餐椅,让整体看上去开阔不繁复。沙发与卡座之间用乳胶漆做拱形门跳色,给钢琴案了个家,也给整面大白墙增加了活力。


玄关进入餐厅处做半弧。弱化梁体的同时让两个空间有个连贯性,回家充满仪式感。
客厅

公共区域选用木纹地板砖,既有木地板温暖的色调又中和了木地板难打理的弊端。组合型茶几,设计与储物兼具,线条花纹地毯铺地,坐沙发的时候更惬意舒适。

整柜电视背景墙,部分镂空实现多种储物方式,吊顶预留空调出风口,玻璃圆球吊灯淡雅的同时带着小设计。

姜黄色懒人沙发点缀奶茶色主调的客厅,客厅与阳台的空间划分用半弧形的门框设计,与玄关处相呼应。
卫生间


客厅进入干区用拱形门做视觉功能划分,洗手池侧面做半墙防止台面水渍滑落地面,同时也遮挡了浴室柜侧面的尴尬视角,半墙预留两格壁龛做端景摆放香薰等小物件,弧形门框与整体风格一致的同时,为干区增添了几分设计感。

洗手池外移,储物柜做错层抽屉式,上下镂空,上面储物柜搭配圆镜,美观与实用并存,背景墙翠绿色长方砖与白色长方砖拼色,清新自然。

湿区同样以翠绿色长方砖与白色长方砖拼色为背景,地板砖则与厨房一致。
卧室

主卧焦糖奶茶的色调,营造舒心安逸的氛围,让疲惫一天的身躯得到更好的放松环境。


梳妆台拼色区的半弧形与衣帽间的半弧门框像一个半折的屏风,似断非断视觉延伸至衣帽间,羽毛灯让主卧多了几分柔和舒适与浪漫。


衣帽间落地窗搭配白纱,干净整洁简单通透,柜子的设计根据业主身高习惯做了功能划分,左手边利用原本的梁柱结构做了薄柜存放女士包包饰品,玻璃门设计既有展示性方便挑选拿取,又不至于整面柜子过于呆板。
次卧


次卧设计了榻榻米,其实是排骨架抽屉床,侧面抽拉方便收纳拿取,床尾柜子与书桌相连做了视觉的延伸。奶茶配色让空间静下来,慢下来,更适合休息。

书桌与床尾的连接让活动区域更开阔,镂空书架在整面柜之中起到减负的作用,减少柜面的压迫感。
书房

书房墙体拆除,与阳台打通做开放式,书桌柜与衣帽间衣柜相连,减少墙体。
阳台

烘干机的使用,减少了阳台晾晒功能,洗烘机叠放节省地面空间增加了洗衣池功能,操作台延伸也让MINI小吉的出现不那么突兀,也多了衣物叠熨功能区,细心的业主还在柜子外面加了蕾丝纱帘,即能遮丑又是一道风景。
