
这是我们为游戏概念设计师HJL设计的家。
项目是一套高层住宅,俯瞰架空于高速公路上的花园,“在逼仄的城市空间里——城市与自然结合,
通过立体改造生长出更多空间”,颇有一种魔幻而现实的概念设定。

以绘画为主要媒介,HJL的兴趣涉猎广泛,从游戏与模型,到自然史、武器、航天与建筑,
这些不同的关注与探究为创作者身份提供了多面向的视角,也构成联系,
如同一个恒常的内在世界展开,而仍有许多想象空间。

设计的概念,起于自然与城市结合的理想形态。城市空间里高低错落的地形,
是HJL喜欢的景象——“一眼看不穿、转角有惊喜”,关于城市,总有下一块未知的拼图。
通向“自然”


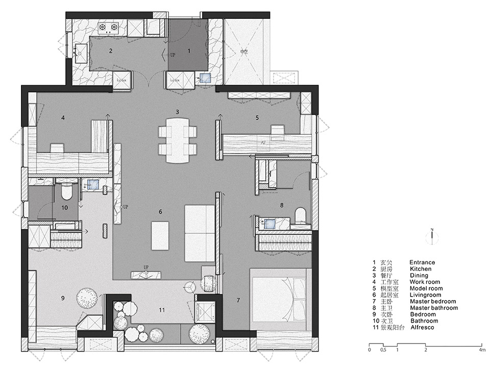
原始空间为四室两厅两卫户型,格局方正均衡,各空间按部就班,规矩而局促。
而作为个人独居空间,更加缺乏贴合生活的关系尺度与空间想象。
因此,我们从环境的互动关系出发,基于原始的四房基础布局,通过解构立面关系,
形成动态的区隔与联系,高低错落、延伸拓展,创造有机的动视线,
探索室内的关系演绎——统一而混合、开放而克制,重新想象逐渐被城市空间遗忘的自然尺度。


通过调整结构和动线,原本封闭的厨房空间被打开,从L型拓展为U型,展开充分而流畅的尺度。
玄关与厨房——两个相对局限的空间,在木质、尺度与光线的融合中,围合延伸,形成一个柔和的整体性过渡场域。



借用柜体体量围合出门洞的空间感,从地板引导至双开门,强化进入主空间的仪式感。
通过简洁凝练的手法,回归传统住宅的尺度。双门日常开启时,则自然隐藏于两侧,增强空间连续。

基于“园”的理想原型,围绕书籍与植物的日常,起居空间与多功能室以相互延伸的初始形态,
共同融合为“阅读+休憩”的主场景,消融了以客厅为中心的传统布局。
在“伊甸园”


抬高的地台,将大量的储藏收纳融入其中,形成一个L型大平台,
创造随意坐卧的慵懒日常,作为综合的功能形式,使原本相对独立的区域形成自然连续的廊道空间。


石阶与植物,错落生长。景观区域作为自然语言的一部分,也作为空间的日常实践。
多功能室结合景观区域,与户外的地形相联系,
与客厅木地板同锯纹的榻榻米木饰面,以自然的野性肌理,形成自由开放的整体空间。
赤脚行走,不同的区域,循切身的活动尺度,自然界定——向上或向下。


“柱廊”:理想的庇护
加入立柱的体块,天然莱姆石——以自然沉积与风化的质感,编织空间的肌理特征;
同时,也通过雕塑性的结构,竖立框架的精神,将开放性分配至整个空间,表现出“空”的状态。


外置的岩板盥洗台,基于石柱与石阶的开放布局,形成拓展的灰空间,
塑造廊道尽头的景观,以水的形式与功能,映射着东方的自然精神。
一横一纵,延续平衡而克制的秩序;一面竖镜,拓展视觉空间的纵深层次与静谧动态。


多功能室既是开放的,又是独立的——两侧移门向立柱汇合,
则形成完全闭合的独立空间,应对未来变化的需求。通过移门系统,形成连续性的关联,组织多层级的空间关系。
空间,被视为一系列活动的连续整体,在分隔与连接中产生延伸或隐藏的场域。


日常的“画廊”
基于开放式空间,餐桌区域通过一个大尺幅的白色画框,协调立面的关系。
在实用性的基础上,采用特别定制的形式,以便捷替换画作,创造艺术与感知的日常空间。
在空间之域,建立向内延申的宽度,照料日常的感官和漫游。空间的意象与感知,树立美学的精神场域。

自然之“间”
木质与白墙,建立纯粹和谐的空间基调。
而浅灰微水泥立面,则借以远近景的色调关系,从整体空间,成为轻缓退后的虚渺空间;
而置身其中,则拥抱着沉稳柔和的安全场域,塑造向内的层次。
通过尺度调整,原本的过道空间并入卧室区域,延长由动区进入静区的转换过程。


卧室与客厅的界限,由一道低矮的地台与灵活的移门,
借鉴东方传统的室内外自然关系,消除封闭性,创造非固定的空间关系;
以“下沉”的空间感,结合半遮掩的绿植动态,模糊室内外尺度,
创造卧于自然的宁静与纯粹。开合之间,安于室,也安于“野”。

创作之“间”
模型室以模型制作与展示为基础。
位于卧室的另一端,通过移门制造灵活的隔离与连接。
从卧室眺望,呈现井然有序的模型展示。关闭移门,则可隔离打磨和喷漆作业带来的影响。
我们还想象了另一个场景:早上起床,打开移门,前一天完成的模型作品,又成为自然唤醒的“惊喜” 。




同时,入户洗手台与区域位置相结合,也作为模型室的功能补充,以方便就近清洗模型绘画与喷漆用品。
而从外部空间视角,模型则从侧面被隐藏,保持简洁利落的白色体块。


画室和模型室都保持着基础的白色空间。在纯粹的几何形式下,不同视窗,创造空间的置换与对望,
有机拓展,在联系与疏离中,强调从不同角度的通透视觉对话。
添加自然材质的长桌,为日常工作创造平静而充分的围合尺度。
模型与植物落于框架,错落生长,持续塑造着空间。在充满生机的空间中,回到小而自由的安静世界。

赖于高层与楼距带来的宽阔视野,向远眺望,可以一直看到城市与山的结合;
转而向内,基于画画、模型与植物的日常——在水平线的尺度中,
延伸出另一个与自我相处的“悬浮”版图,充满生机的、具有想象的。

它是空中的,自在的。在城市的密度中,“地景”之延伸与探索,是尺度、空间与想象。
通过非固定、非定义的空间,带来日常对空间的感受,
也创建隐于城市节奏的宁静之地——以“此时此地”的自在状态与理想生活方式,
保持自我生长、也保持初始与空白的“乌有之地”。


项目名称:栖息地
设计机构:廣州幾築空間設計
设计师:陈煦/毕惠君
项目地址:中国·广州
项目面积:100m²
摄影:AYstudio
客户:HJL
