
屋主是通过朋友找到我们,是一对对空间有清晰期待的夫妻。不急着装修,也不盲目追求风格,而是早早地开始思考“怎样的空间,才能陪伴我们真正生活下去”。
他们希望它安静克制,却不冷淡;希望它有秩序感,也要有呼吸感; 望有一个沉下心来阅读与工作的大书房,更希望每一个空间都被真实用起来,而不是“好看但闲置”。
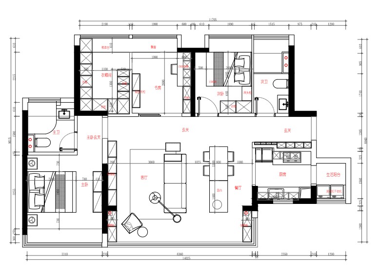
基于他们对空间使用逻辑的明确设想,我们从一套精装交付的常规三房出发,进行了整体改造。拆墙、合并、重构动线,也重构了光、风与人的交互路径--以“意式极简”为基调,但不是为做风格而极简,而是让每一个收纳、每一处留白,都服务于居住者的节奏感与日常偏好。
从玄关的归置动线,到客餐厅的一体化布局,从书房的通透玻璃隔断,到主卧的安静光感,我们尝试做的是一个可以真正承接生活的空间。它无需过度表达,却处处回应居住者的需要。
装修前

客户的问题点:
1.厨房功能需要整合,空间不够开阔
2.客餐厅空间不够开阔,储存功能不足,需要优化
3.根据业主家庭成员结构,以及业主的办公需求,需要重新规划房间布局
设计师的思考点:
1.原有厨房的功能边界,是否有打通重组的可能?
2.厨房、阳台、餐区之间,能不能形成更完整的一体化生活动线?
3.客餐厅的分隔感,是否正是影响空间感的根源?
4.两个功能重复的次卧,是否能被合并,反而提升空间利用效率?
装修后

拿到这个户型时,我们感受到的最大问题,不是“哪里太小",而是空间之间的联系太弱。厨房是厨房,阳台是阳台,客厅也像被家具挤压着,被动变得局促。
客户本身对生活质量有明确要求一-她在家办公时间长,需要一个沉静独立的书房,也希望厨房能真正发挥"下厨+储物”的功能;而不是只满足“有个厨房”就行。
所以我们在思考的,是空间之间如何重新组合,而不是简单地“扩展某一个房间"。
1.厨房那一段原本有生活阳台,采光很好,但功能割裂。我们选择封阳台、拆门、拉通空间,不仅把原本浪费的过道纳入厨房操作区,也新增了一整面的储物可能性。再配一扇黑框玻璃门,使用上灵活,视觉也更轻盈。
2.横厅结构本身其实具备很强的通透感,但被原始布局“切断”了。我们打通客厅、餐厅和阳台,在家具关系与结构节奏上重构横厅,形成光线贯穿、动线流畅的大生活场景。中段也嵌入了高效的收纳体系,满足实际所需。
3.两间次卧的打通,源于我们对客户家庭节奏的重新理解:与其让不常使用的空间闲置,不如合并成书房+衣帽间组合--使用频次更高,也贴合她的日常状态。
而书房与客厅之间的玻璃推拉门,是让两个空间保持独立,也保持连接。
玄关

玄关柜我们预留了镂空拖鞋位和开放式置物台。柜体用温润木色构筑氛围,顶部做了隐藏灯带,夜晚回家,暖光自动亮起。
左侧是整面顶天立地的大收纳,高频使用的鞋放下层,换季鞋藏在上层,结构清晰、取用顺手。简单的分区逻辑,就是好用的第一步。
客厅



原户型的客餐厅是典型的小横厅,虽然面积不小,但因为阳台被推拉门隔开,视觉上显得狭长、空间使用也受限。
在这次设计中,我们选择将阳台推拉门拆除,重新梳理客厅、餐厅与阳台之间的关系。空间被横向拉开之后,不仅光线可以自由穿透,也让原本局促的“纵深感”被优化为真正的“横厅结构”,使用更高效,氛围也更开阔舒适。
日常活动不再被动区割裂,人在空间中的行动变得更自由。餐桌与沙发之间没有阻断,阳光也能贯穿整个空间,让客厅从早到晚都具备自然节奏感。这个开放式布局的好处不仅是“看起来更大”,更重要的是,它赋予了空间更多使用可能,也让生活的松弛感,从结构上生长出来。




在茶几的选择上,我们摒弃传统中置方案,改用了这款有点小中古风格的藤编+金属结构推车。它轻巧灵活,不占空间,可以根据使用需求自由移动。
一张可以“推着走”的小推车,其实具备多重身份:可以是临时的书桌、水吧、植物展台,也可以是沙发边的小边柜。橙色与藤编元素让它在克制色调中脱颖而出,成为整个客厅中最具“生活力”的那一点。


电视墙部分,我们做了三个维度的划分:白色哑光饰面为主视觉背景,黑色开放格展示柜,底部则是定制的同黑色落地电视柜体。这样既保持了整体的简约感,又在不同层级上加入了实用与内容。
我们不希望电视成为唯一焦点,所以电视四周预留了大量留白,目的是让“看与不看”都能有呼吸空间。而这样设计很重要的一个原因是将主卧的门和背景墙一体化,能够让客厅显的更宽,同时又可以让主卧的门不会很突兀。



客厅的真正核心不是电视,也不是沙发,而是“动线的流动性”。
我们在布局时特别考虑了“从玄关-客厅-阳台”与“厨房-餐桌-客厅”这两条视线动线的交叉。横厅正中线设为视觉与照明中轴,沙发不遮挡主光线,推车可以移开,展示格也避免过多立面干扰--这样一来,无论从哪个方向走入这个空间,都会觉得“通透”“顺畅”,是结构、尺度与视觉的三重配合。
餐厅



餐桌选择了温润木色,桌脚为细长金属框架,搭配软包餐椅与藤编坐垫,整体线条轻盈,触感柔和。椅背高度与沙发持平,餐厅与客厅之间没有过渡的尴尬,也不会造成视线干扰。
过道墙采用整面白橡木饰面包裹,将原本独立存在的门洞“隐身”在统一材质中,形成连续而安静的视觉流线。吊灯为线性结构,与地面灰砖、白色岛台共同构成一个克制、平衡、不过于餐饮属性化的“共享桌面”。
在这个空间里,就餐不只是吃饭的动作,更是家人之间停下来、交流的时刻。而设计的任务,是把这些“看不见的功能”,变成可以被使用、被感受到的空间语言。
厨房

厨房原本空间不大,为了让它真正成为日常的高频使用场,我们将生活阳台完全纳入厨房体块,并在结构上形成一整条完整的“U字型操作动线”。
从冰箱取物,到水槽清洗,再到台面处理与灶台烹饪,每一个环节几乎可以“原地旋转完成”洗衣机、嵌入式垃圾桶与水槽一线排布,将原本分散的生活杂务集中整合,也极大节省了台面空间。吊柜与地柜之间保持了留白,墙面使用与台面统一的岩板材质铺贴,易清洁且视觉上更连贯。窗边配有长条挂钩与插座,方便锅具与电器操作。
书房



这个书房,没有冗杂装饰,但有足够多的留白与承载空间。我们不做常规的封闭式书柜+书桌组合,而是以悬浮式书桌、通透开放格和飘窗系统,重新组织了阅读与工作的场所逻辑。
书桌做成无腿结构,从墙面延展出悬浮台面,整洁、轻盈、方便清理,也让空间保持更强的视觉流动性。侧边和顶部设置壁挂书架,用深色框体托住纸质书籍的重量感,也借此延续整体空间的平衡尺度。
飘窗部分做了彻底改造,下方是一整排带隔层的收纳台,上方则保留自然采光。白橡木质感将窗外光线温柔过滤,让阅读区域始终保持静定氛围。我们特意将窗台与书桌同色同面处理,弱化结构割裂感,也让空间更有整体性。
主卧


主卧整体氛围的打造,核心在于“安静”--不是无声,而是让身体和情绪都有充分的放松余地。空间以大面积哑光暖米墙面为背景,不做多余造型,仅用一块深棕色木格条收口,搭配金属质感小壁灯,形成视觉焦点,也补足局部照明。
次卧


大面积留白墙面搭配哑灰木地板,床头靠背选用黑色皮质材质,增加视觉锚点,也为整体空间定下冷静、克制的基调。一条抽象花纹毛毯轻搭床面,增添柔软度与生活感。
床侧依然保留飘窗结构,不塞进任何“功能”,只铺一个软垫、放一个抱枕,足够晒太阳、发呆看楼下的车流。
整面衣柜做隐形把手处理,与墙面融合,强化空间纯净度。对我们来说,这种次卧的设计目标不在于形式感,而是让它“干净到随时可以被生活重新定义”。
卫生间

淋浴区采用转角异形玻璃隔断,扩大站立面积的同时尽可能减少对动线的侵占。全玻璃的设计增强了通透感,淋浴后也能快速散热、干燥,维持空间清洁状态。
利用飘窗台有一个小坐休息或者整理的平台,也放置了一个小的洗衣机,让原本阻挡的位置变得合理利用,也更好的融入了空间里。
浴室柜做了悬浮处理,下方空间释放,便于清理,也让原本封闭的洗漱台区域变得更轻盈。墙面和地砖选用浅灰暗纹砖,在自然采光下呈现出柔和的磨砂感。
